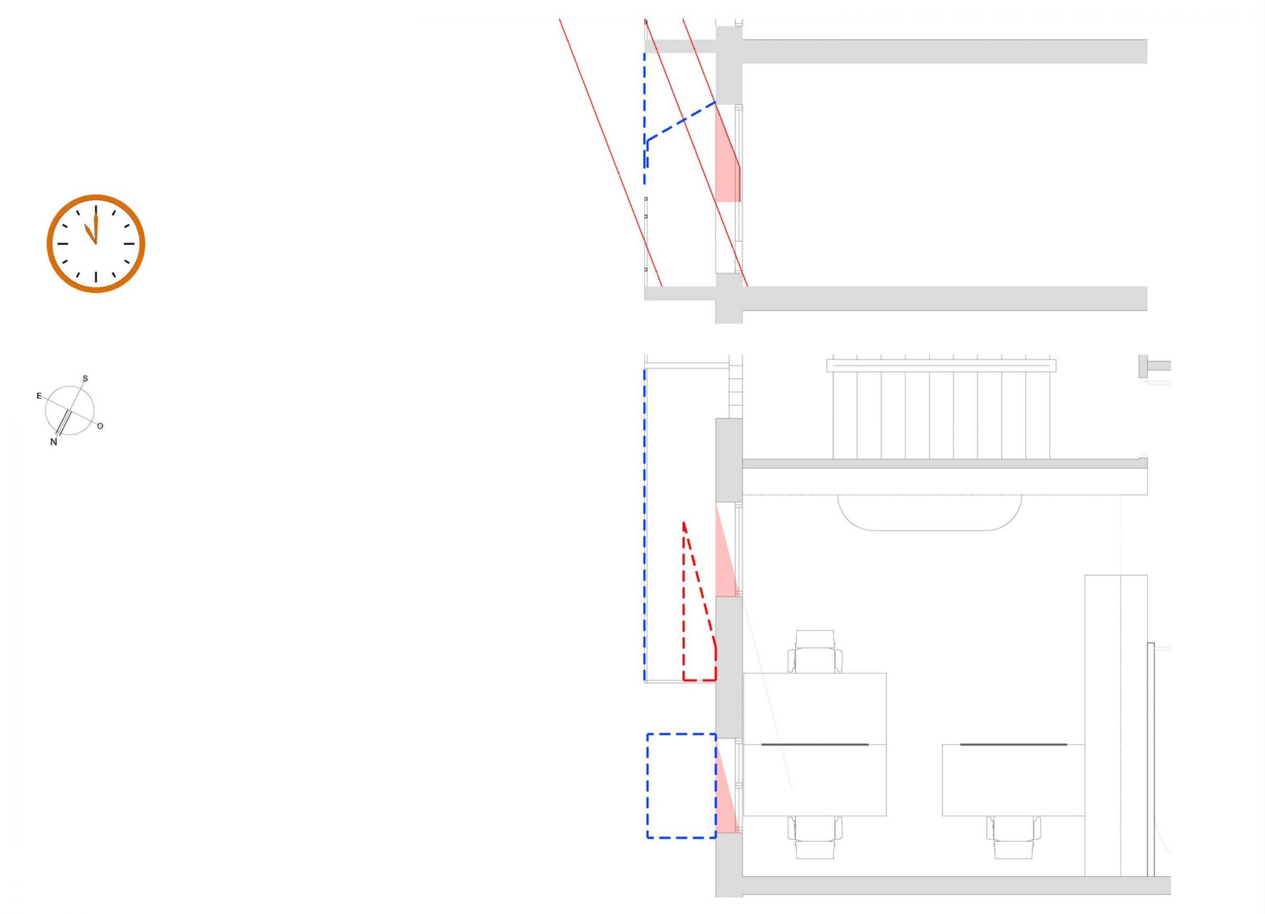
ER-02 ER-01_A3_PLANTA 11h